ПОИСК
Найдено в материалах
Региональное ФСБ пресекло деятельность группы из восьми жителей региона, которых подозревают в подготовке поджогов вышек сотовой связи и повреждении оптоволоконных линий в Салавате и Ишимбайском районе.
Курултай направил в Совет законодателей России проект закона о посреднической деятельности на рынке недвижимости.
В регионе начался набор добровольцев в подразделения, которые будут охранять критически важные объекты.
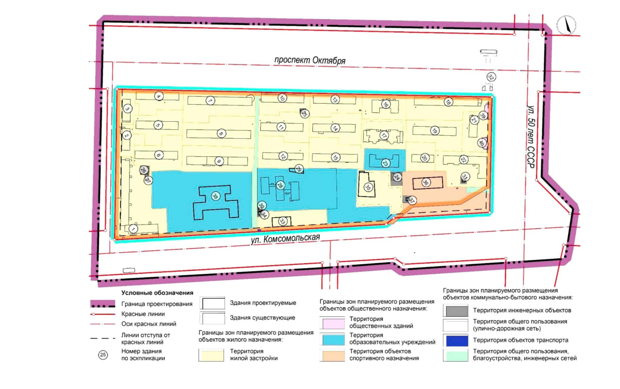
Администрация утвердила проект планировки и межевания квартала, ограниченного проспектом Октября, улицами Комсомольская, 50 лет СССР и внутриквартальным проездом в Советском районе.
Курултай направил в Совет законодателей предложение закрепить в законе оплату риелторам только после того, как клиент примет отчёт о проделанной работе, пишет РБК Уфа.
Жительницу Стерлитамака оштрафовали на 250 тысяч рублей и лишили водительских прав на два с половиной года за повторное управление автомобилем в состоянии алкогольного опьянения.
На совещании правительства Ирина Голованова сообщила, что готовность снегоуборочной техники в четырёх районах — Фёдоровском, Янаульском, Миякинском и Белорецком — не превышает 75%.
Главой управления по общественно-политическому развитию администрации главы Башкирии назначен Ильмир Аглиуллин.
Сильнее всего подешевел Jetour Dashing — на 7,2%, до 3,05 млн рублей. Следом идут Chery Tiggo 7L (–2,5%) и Belgee X70 (–2,2%).
Инвесторы смогут получить льготные займы под 10% годовых.
Новогодний поезд отправится из Владивостока 19 ноября.
Глава Башкирии потерял две позиции в октябрьском рейтинге влияния руководителей регионов, составленном Агентством политических и экономических коммуникаций.
Рекомендуем:
Популярное
Лицензирование управляющих компаний в Башкирии могут ужесточить
Пивоварни в Башкирии освободят от налога на имущество. Для этого необходимо соблюдение некоторых условий
«Салават Юлаев» впервые в сезоне обыграл «Ак Барс»
ИИ снова на пьедестале: ежегодное аналитическое исследование трендов цифровизации представил «Ростелеком»
Количество каналов в МАХ превысило 87 тысяч
Последние новости

