- 07 октября 2025 14:38
- Новость
В центре Уфы обновили проект застройки квартала у мечети Ар-Рахим
Лента новостей
На участке появятся два жилых комплекса, общежитие БГМУ и детский сад.

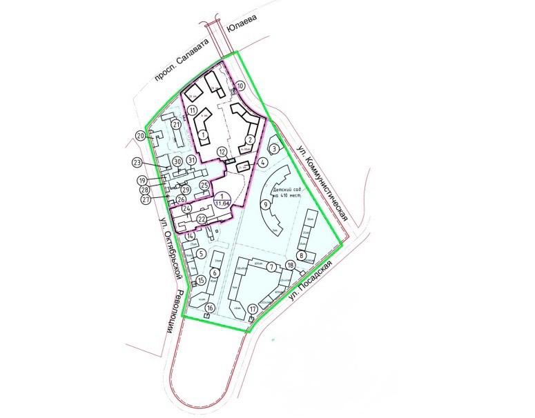
Мэрия утвердила изменения в проект планировки территории, ограниченной проспектом Салавата Юлаева, улицами Коммунистической и Посадской, а также сквером у Монумента Дружбы.
В рамках корректировки застройщик «Уфа-Сити» планирует возвести два многоквартирных жилых комплекса высотой от 6 до 30 этажей. Их общая площадь превысит 46 тысяч кв. м. Также предусмотрено строительство 24-этажного общежития на 460 мест для студентов Башкирского государственного медицинского университета, детского сада на 410 мест и школы на 900 учеников.
На прилегающей территории появятся парковки и благоустроенные общественные пространства. При этом сохранят исторические здания, в том числе объекты культурного наследия на улице Октябрьской Революции.
Рекомендуем:
Популярное
Несколько управляющих компаний в жилых комплексах предлагают объединять в одну. Как это отразится на застройщиках и жильцах?
В Башкирии усиливают защиту заводов от атак БПЛА
Жителей Башкирии ждёт шестидневная рабочая неделя в начале ноября
После обрушения крана под Уфой одному из пострадавших провели экстренную операцию
Новый ЖК возведут в Уфе на пересечении улиц 50 лет СССР и Комсомольской
Последние новости