- 13 января 2026 10:30
- Новость
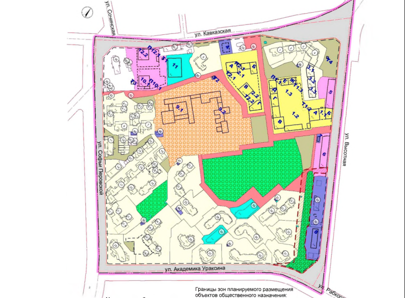
В Уфе вблизи Сергиевского кладбища построят новый ЖК
Речь идёт о территории площадью 37,4 гектара, ограниченной улицами Софьи Перовской, Кавказской, Высотной и Академика Ураксина.
Постановление опубликовано на сайте мэрии.
Документ предусматривает снос почти 15 тысяч квадратных метров застройки, в том числе индивидуальных жилых домов и нежилых зданий. Под расселение попадает жильё, где сейчас проживают 351 человек.
На освобождённой территории планируют строительство пяти жилых комплексов высотой до 32 этажей с подземными паркингами. Общая площадь нового жилья составит более 103 тысяч квадратных метров. Численность населения в границах квартала после реализации проекта оценивается в 10,5 тысячи человек.
В составе застройки предусмотрен многофункциональный образовательный центр — школа на 1 750 учеников и детский сад на 434 места. Также проект включает поликлинику для взрослых и детей, офисные здания, парковки почти на 2,5 тысячи машино-мест, инженерную инфраструктуру, скверы и общественные пространства.
Рекомендуем:
Популярное
Денис Ганиев покинул пост руководителя пресс-службы главы Башкирии
«Формальное создание структуры не несёт результата»: В Башкирии появился новый вице-премьер по ИИ
«Вернуть звание самого зеленого города». Власти Уфы по решению суда пересчитают каждый куст на территории города
Главный тренер «Салавата»: Мы пока не готовы обыгрывать такую команду, как «Локомотив»
«Сказочный» сюжет. ЖКХ-конфликт в пригороде Уфы чуть не перерос в противостояние чиновников и местных жителей
Последние новости

